პროექტის შესახებ ტექსტი
ვარკეთილი 5
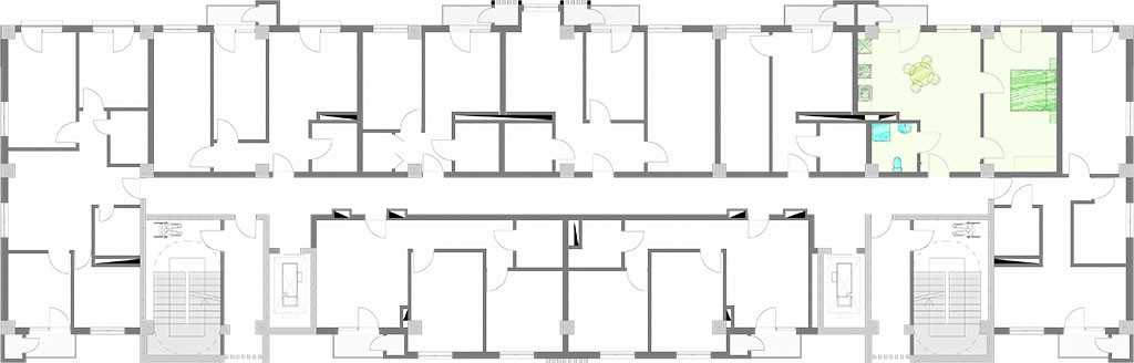
ბინა №24

- სრული ფართი 52.9 მ²
- 1 საძინებელი - 19.1 მ²
- 2 სველი წერტილი - 4.2 მ²
- 3 აივანი - 2.7 მ²
- 4 აივანი - 0.5 მ²
- ბლოკი 31
- სართული 3
- ბინა №24
ფასი:
136 086
- ₾
- $
-
კვ.მ. ფასი:
2 573
- ₾
- $
-
პროექტის შესახებ
დასრულდება: 2025 წელი
მისამართი: ვარკეთილი